Family Built Homes
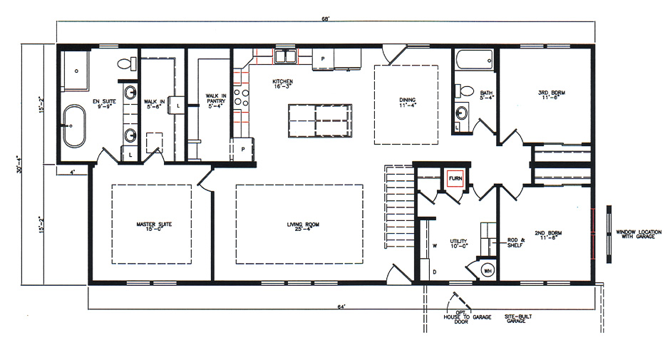
FB-646801
2002 sq.ft.
3 bedrooms
2 bathrooms
30'4" x 68'0"
| |||||||||||||||||||||||||||||||
|
Call for appointment or walk in Wednesday through Saturday 10am to 4pm
Call for appointment or walk in Wednesday through Saturday 10am to 4pm
| |||||||||||||||||||||||||||||||
Family Built Homes | |||||||||||||||||||||||||||||||